程志芳
安科瑞電氣股份有限公司,上海 嘉定 201801;
摘要:隨著社會生活水平的提高,經濟的繁榮發展,人們對能源的需求逐漸增長,由此帶來的能源危機日益嚴重。學校建筑如何實時的了解、分析和控制能源消耗已成為需要解決的迫在眉睫的難題。傳統的能源消耗智能以月/季度/年為周期進行,然而學校學校建筑是每日、每時都在進行,能源消耗也是每日、每時的發生。本文介紹蘇州市滄浪中學建筑能耗監測系統,系統采用現場就地組網的方式,組網后通過Acrel-5000型能耗監測系統實現各配電回路用電監測、管理。
關鍵詞:學校建筑;能耗監測系統;ACREL-5000
1 引言
隨著節能工作的深入,能源利用狀況的科學化管理手段日趨多樣。能耗管理系統可實時監控學校建筑各種能源的詳細使用情況,為學校建筑查找能耗弱點,促進大樓管理水平的提高及運營成本的降低,為節能降耗提供直觀科學的依據。蘇州市滄浪中學建筑能耗監測系統,通過對能源的采集并管理降低能耗提高利潤。
2 設計依據
GBT23331-2009 《能源管理體系要求》
GB-50052-2009 《供配電系統設計規范》
?能耗計量裝置國家及行業標準
DL/T 645-1997 多功能電能表通信規約
DL/T 645-2007 多功能電能表通信規約
CJ/T 188-2004 戶用計量儀表數據傳輸技術條件
3 項目概況
蘇州市滄浪中學建筑能耗監測系統主要監視的
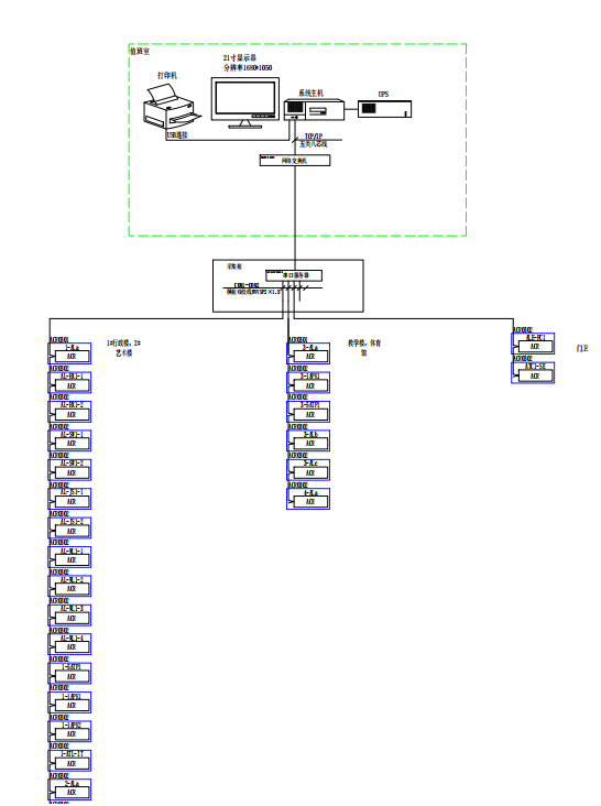
配電箱:現場藝術樓17塊ACR儀表,教學樓7塊ACR儀表,門衛2塊ACR儀表做能耗系統。
4 系統架構
安科瑞Acrel-5000能耗分析管理系統根據公建現場實際情況,整體網絡結構采用屏蔽雙絞線直接接至后臺能耗網關然后通過TCP/IP網絡將數據上傳至的監控主機。具體如下圖所示:

該系統主要采用分層分布式計算機網絡結構,如系統結構圖所示:站控管理層、網絡通訊層和現場設備層。其中儀表分布在配電室,樓層配電間,所有儀表通過485屏蔽雙絞線鋪設至監控中心,經能耗網關至系統主機從而完成儀表數據的采集并管理。
5 系統軟件模塊
?綜合能耗主界面

主頁面顯示該建筑的建筑圖片,建筑基本信息,建筑當月分項用電餅圖和各種能源的消耗量。根據所選的建筑,對其建筑圖片進行加載,可以選擇時間查看建筑能耗情況,選擇建筑或時間后自動刷新,默認為當天。
?支路用能

系統可以統計各支路某段時間內逐日、逐周、逐月、逐季、逐年用能。系統可查看各支路用能趨勢,可根據已有的日期或者自定義時間進行查詢,并可以將支路用能顯示合計,以圖表形式顯示。
?分項能耗統計

系統可以按照分項進行能耗統計與顯示。其中,日分項用能同比分析圖顯示不同分項的當日與昨日能耗柱狀圖(藍色柱表示今日,綠色柱表示昨日);用能餅圖顯示各分項過去31天的用能占比;堆積圖顯示各分項過去31天的能耗趨勢;分項用能排名圖顯示被選中分項對應能耗值排名前10位的支路。
?分項用能報表

系統可以統計各分項某段時間內逐日、逐周、逐月、逐季、逐年用能。可查看分項中各支路用能趨勢,可根據已有的日期或者自定義時間進行查詢,統計數據可導出至Excel。
?能耗的同比環比分析

系統可將各主要耗能設備的能耗與去年同期值和上月值進行同比環比分析,檢驗節能效果,根據分析結果執行節能績效考核,以及節能目標的修正。統計各支路當年每月用能及去年同期用能;
?用能數據檢查
系統可以統計某段時間內各回路與下級支路的用能差值,超過一定百分比后醒目顯示(紅色區域),確保計量體系的完整性、準確性。
?配置選項
依照相關技術規范配置建筑物的基本信息,例如:建筑功能、建筑面積、空調面積、建筑地址等,其中建筑面積等信息將用能單位面積能耗分析;
配置項目中使用的儀表的類型、型號、生產廠家等基本信息,并添加該型儀表所能提供的監測參數信息,此處配置情況影響能耗統計、分時段用能統計、參數查詢功能;
配置項目中使用到的所有計量儀表,保存計量儀表的地址、變比、對應的采集器、代碼、監測回路的名稱等信息;
配置分項能耗統計時涉及到的計量表計、所占比例、運算方式等信息,可根據項目情況靈活配置,此處配置信息將影響各分類能耗分項用能分析小模塊中的功能;
配置各部門用能對應的計量儀表、運算方式、所占比例以及部門用能計劃,完成此項配置后將啟用部門能耗分析功能模塊;
配置建筑物中某用能區域對應的計量儀表、運算方式、所占比例,完成此項配置后將啟用區域能耗分析功能模塊
6 前景展望
根據樓宇能耗運行效果分析,建立典型能耗分析模型,統一分析。
?建立建筑能耗計量體系:針對公建的用電結構,監控至配電室層級,能正確無誤的統計進出線回路,要滿足電能守恒原理即進線電能為出線電能總和(誤差率在3%左右)。
?對采集數據存儲,并形成可視化圖表:系統采集數據后存儲到數據庫,系統可滿足報表查詢及導出,并且系統可由柱狀圖等形式展現能耗趨勢,給客戶更好的體驗。
?診斷出高能耗點:管理人員可通過系統采集數據,正對性的對各個回路同比及環比分析,通過一階段分析可找出高能耗點。
?通過能耗分析改進管理運營模式:針對高能耗點,正對性的改進管理運行如:在下班期間通知各個小組關燈、關機器,同時列入績效考核;在工作期間對用電負荷較大回路可錯峰,減少同時間負荷過大;通過能耗數據可減低公司運營成本提高利潤。
7 結束語
蘇州市滄浪中學建筑能耗監測系統是在能源問題日益緊張,能源價格不斷上漲的背景下,針對學校建筑能耗問題而設計。在建設能耗管理系統后,不但能減輕工作人員的工作負擔,提供工作效率,而且直觀的統計分析結果更能有效地幫助管理者根據能耗情況,做出正確的分析,對今后的發展做出正確的決策,對促進和帶動節能工作,實現節能減排目標具有重要意義。
參考文獻:
[1].住房和城鄉建設部技術要求
作者簡介:
QQ咨詢
咨詢熱線
微信咨詢
